モグラック

モグラック

 

 特性

 

省スペース

モグラックは僅かな設置スペースで取付られる小型のエレベーターです。狭い現場でも昇降設備の事で悩む必要はありません。

吊下げ式

モグラックは独自の吊下げ式設置方式を採用。掘削途中の立抗に取付けてレールの延長が可能です。

軽量ラックレール

モグラックは従来の常識を破る軽量のT型レールを使用しています。軽量レールのおかげで、現場での取扱いが簡単に行えます。

安全装置

モグラックは工事用エレベーターとして最高の安全性を誇っています。これらは単に付属装備としてでなく基本構造から安全性に気を配った設計をしています。

 
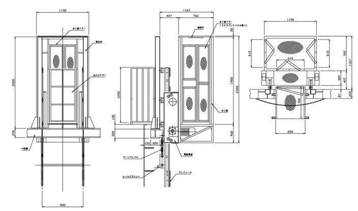
 外形寸法図

MW-200

 
 仕様一覧表

仕様一覧

※ 上記仕様などは予告なく変更される場合があります。詳細は特機部までお問合せください。

 モグラック

モグラック

 

 特性

 

省スペース

モグラックは僅かな設置スペースで取付られる小型のエレベーターです。狭い現場でも昇降設備の事で悩む必要はありません。
 

吊下げ式

モグラックは独自の吊下げ式設置方式を採用。掘削途中の立抗に取付けてレールの延長が可能です。
 

軽量ラックレール

モグラックは従来の常識を破る軽量のT型レールを使用しています。軽量レールのおかげで、現場での取扱いが簡単に行えます。
 

安全装置

モグラックは工事用エレベーターとして最高の安全性を誇っています。これらは単に付属装備としてでなく基本構造から安全性に気を配った設計をしています。

 
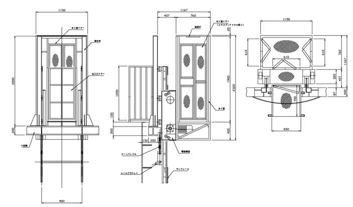
 外形寸法図

MW-200

 
 仕様一覧表

仕様一覧

※ 上記仕様などは予告なく変更される場合があります。詳細は特機部までお問合せください。